Simple flujo centralizado Autorregulable
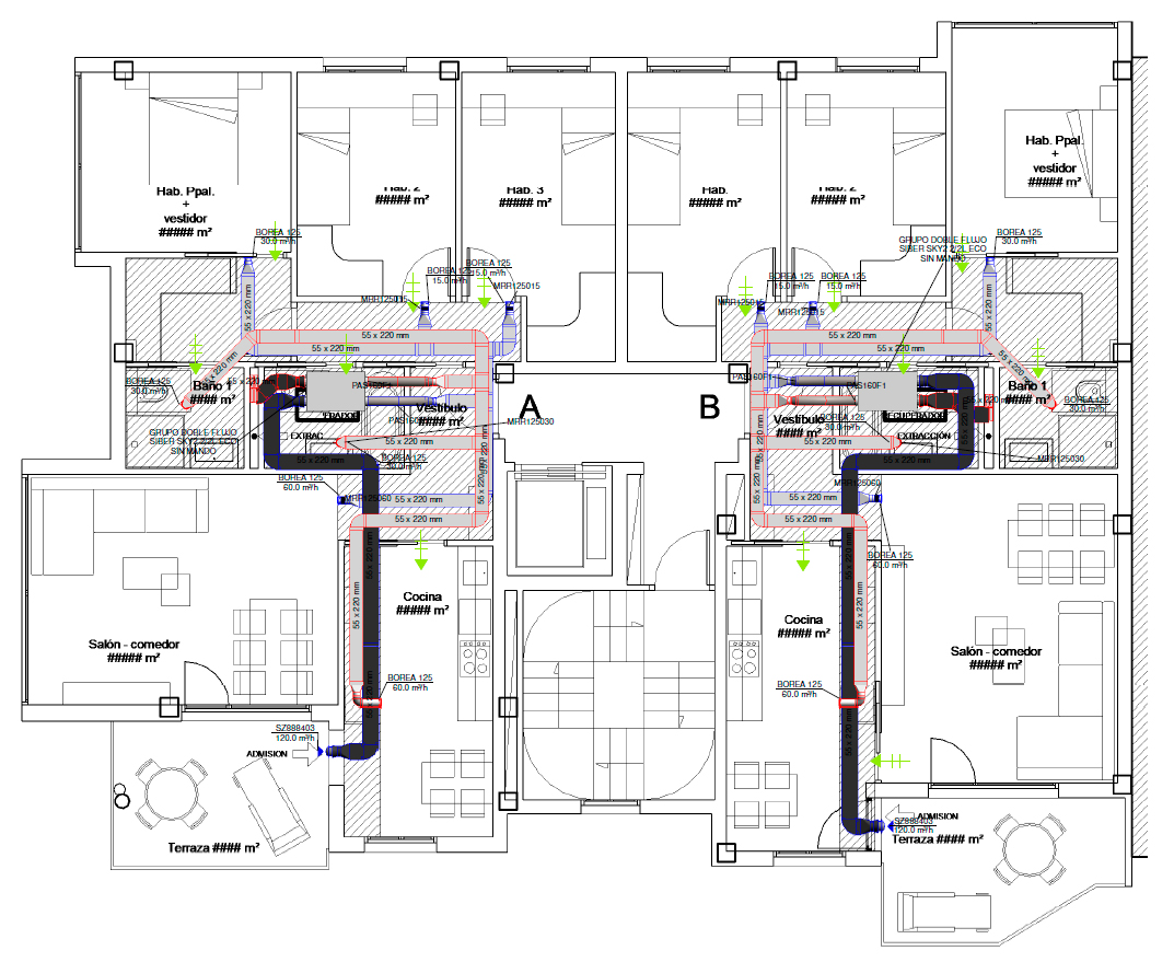
Componentes del sistema
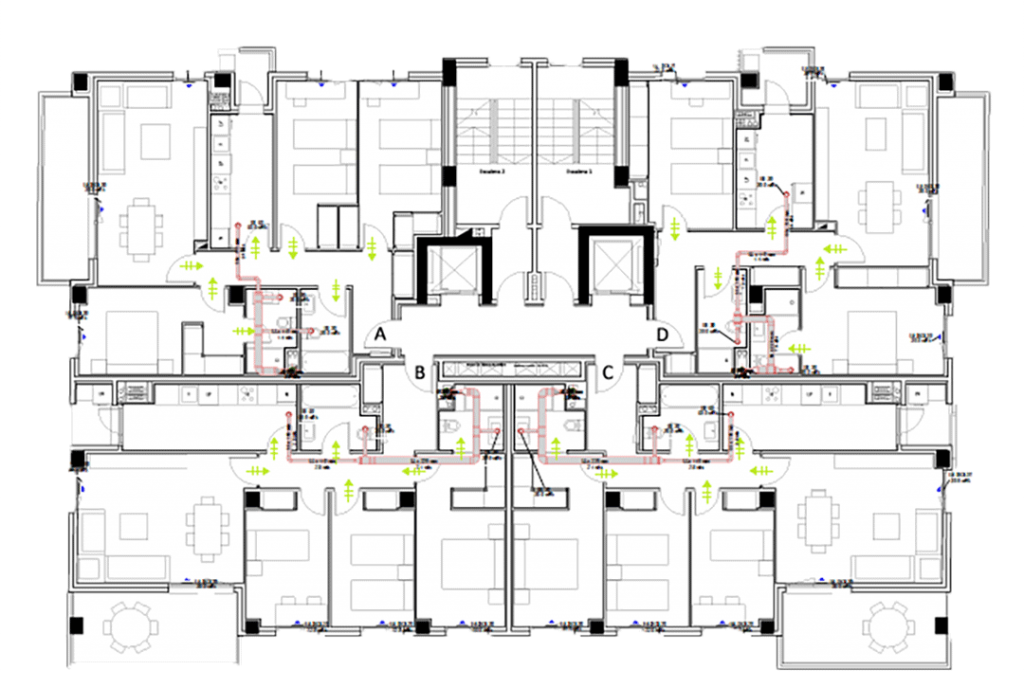
Planta tipo >
Vista 360 >
Componentes del sistema
Componentes del sistema
Componentes del sistema
Componentes del sistema
Componentes del sistema
Componentes del sistema